Q611F三片式內螺紋氣動球閥
產品概述
Q611F三片式內螺紋氣動球閥PN16~PN64分為整體式、兩段式及三段式。閥體鑄造采用國外引進的工藝,結構合理、造型美觀。閥座采用彈性密封結構,密封可靠,啟閉輕松。閥桿采用倒密封的下裝式結構,閥腔異常升壓時,閥桿不會被沖出。
球閥密封原理
Q611F三片式內螺紋氣動球閥屬于浮動式球閥,浮動球球閥的閥體內有兩個閥座密封座,在它們之間夾緊一個球體,球體上有通孔,通孔的直徑等于管道的內徑,稱全徑球閥;通孔的直徑略小于管道的內徑,稱縮徑球閥,球體借助于閥桿可以自由地在閥座密封圈中旋轉。在開啟時,球孔與管道孔徑對準,以保證管道工作介質阻力小。當閥桿轉動1/4圈時,球孔垂直于閥門的通道,靠加給兩閥座密封圈的預緊力和介質壓力將球體緊緊壓在出口端的閥座密封圈上,從而保證閥門完全密封。這種球閥屬單面強制密封。
球閥型號編制說明
|
特殊閥 前代號 |
閥門類型 | 傳動方式 | 連接形式 | 結構形式 | 密封材質 | 公稱壓力 | 閥體材質 |
|---|---|---|---|---|---|---|---|
|
D:低溫閥 |
Q:球閥 |
1:電磁-液動 2:電-液動 3:蝸輪 4:正齒輪 5:傘齒輪 6:氣動 7:液動 8:氣-液動 9:電動 注:閥門為 手動時,此 欄不寫 |
1:內螺紋 2:外螺紋 4:法蘭 6:焊接 7:對夾 8:卡箍 9:卡套 |
見附表 |
T:銅合金 X:橡膠 F:氟塑料 H:合金鋼 Y:硬質合金 J:襯膠 W:本體 |
-10:PN1.0MPa -16:PN1.6MPa -25:PN2.5MPa -40:PN4.0MPa -64:PN6.4MPa -150LB:Class150 -300LB:Class300 -600LB:Class600 |
C碳鋼 H:Cr13系列鋼 I:鉻鉬鋼 K:可鍛鑄鐵 P:鉻鎳不銹鋼 Q:球墨鑄鐵 R:鉻鎳鉬不銹鋼 T:銅 TI:鈦及鈦合金 V:鉻鉬釩鋼 Z:灰鑄鐵 |
球閥結構形式附表
| 球閥結構形式代號 | |||||
|---|---|---|---|---|---|
| 球閥結構形式 | 代號 | 球閥結構形式 | 代號 | ||
| 浮動式球閥 | 直通流道球閥 | 1 | 固定式球閥 | 直通流道球閥 | 7 |
| Y形三通流道球閥 | 2 | 四通流道球閥 | 6 | ||
| L形三通流道球閥 | 4 | T形三通流道球閥 | 8 | ||
| T形三通流道球閥 | 5 | L形三通流道球閥 | 9 | ||
| — | — | 半球直通球閥 | 0 | ||
主要性能參數
| 公稱通徑DN(mm) | 6-100 | ||||
|---|---|---|---|---|---|
| 材料材料代號 | C | P | R | ||
| 主要零件 | 閥體 | WCB | CF8 304 | CF8M 316 | |
| 球板 | WCB | CF8 304 | CF8M 316 | ||
| 閥桿 | 2Cr13 | 0Cr18Ni9 | 0Cr17Ni12Mo2 | ||
| 密封圈 | 增強聚四氟乙烯 對位聚笨 | ||||
| 填料 | 聚四氟乙烯 柔性石墨 | ||||
| 適用工況 | 適用介質 | 水、蒸汽、油品 | 硝酸類 | 醋酸類 | |
| 適用溫度 | -28℃~350℃ | ||||
| 執行器 | 型號 | 63系列、SW系列 | |||
| 氣源壓力 | 0.4~0.7MPa | ||||
| 三段式不銹鋼球閥按用戶要求可做成外螺紋連接型卡箍型 | |||||
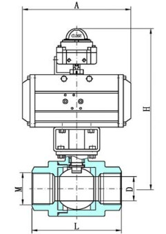
主要結構連接尺寸

| 公稱通徑DN(mm) | 尺 寸(mm) |
執行器型號 (AT系列) |
|||||||||
|---|---|---|---|---|---|---|---|---|---|---|---|
| 三段式 | 對焊式 | 承插焊式 | |||||||||
| G | L | d | L | d | D | L | d | D1 | A | ||
| 6 | 1/4 | 65 | 11.6 | 65 | 11.6 | 18 | 65 | 11.6 | 14.1-14.3 | 9.5 | 50/63RA |
| 10 | 3/8 | 65 | 12.7 | 65 | 12.7 | 18 | 65 | 12.7 | 17.55-17.8 | 9.5 | 50/63RA |
| 15 | 1/2 | 67 | 15 | 67 | 15.8 | 24 | 67 | 15 | 21.7-21.95 | 9.5 | 50/63RA |
| 20 | 3/4 | 82 | 20 | 82 | 20 | 28 | 82 | 20 | 27.05-27.3 | 11.1 | 63/83RA |
| 25 | 1 | 91 | 25 | 91 | 25 | 34 | 91 | 25 | 33.8-34.05 | 12.7 | 63/83RA |
| 32 | 11/4 | 108 | 32 | 108 | 32 | 41 | 108 | 32 | 42.55-42.8 | 14.3 | 63/83RA |
| 40 | 21/2 | 139 | 38 | 129 | 38 | 49 | 129 | 38 | 48.65-48.9 | 15.9 | 83/110RA |
| 50 | 2 | 148 | 50 | 148 | 50 | 62 | 148 | 50 | 61.1-61.35 | 17.4 | 83/110RA |
| 65 | 21/2 | 186 | 64 | 193 | 64 | 78 | 110/127RA | ||||
| 80 | 3 | 206 | 78 | 222 | 78 | 94 | 127/127RA | ||||
| 100 | 4 | 240 | 98 | 273 | 98 | 124 | 127/160RA | ||||
氣動球閥的維護
氣動球閥在安裝前的準備工作:1、保證氣動管路球閥安裝位置管線在同軸位置上,管線上兩片法蘭應保持平行,確認管線能夠承受氣動管路球閥自身重量,如果發現管線不能承受氣動管路球閥重量,則在安裝前為管線配備相應的支撐。
2、確認管線內是否有雜質、焊渣等,要把管線內吹掃干凈。
3、核對氣動管路球閥銘牌,并對氣動管路球閥進行全開全閉數次操作,確認閥門能夠正常工作,再檢查一次閥門的各個細節,保證閥門完好無損。
4、除去閥門兩端的保護蓋,檢查閥體內是否干凈,清洗閥體內腔,由于氣動管路球閥的密封面是球形狀,即使微小的雜物也可能造成密封面的損傷。
氣動管路球閥的安裝:
1、氣動管路球閥的任何一段都可安裝在上游端,手柄氣動管路球閥可以安裝在管線的任何位置,如果配置執行機構(如齒輪箱、電-氣動執行器)的氣動管路球閥,則垂直安裝,閥門進出口處在水平位置上。
2、氣動管路球閥法蘭與管線法蘭間按管路設計要求裝上密封墊。
3、法蘭上的螺栓需對稱、逐次、均勻擰緊。
4、如果氣動管路球閥采取氣動、電動等執行器時,按說明書完成氣源、電源的安裝。
氣動管路球閥安裝后的檢查:
1、安裝完畢后,啟動氣動管路球閥開、關數次,應該動作靈活,受力均勻,氣動管路球閥工作正常。
2、根據管道壓力設計要求,通壓后檢測氣動管路球閥與管道法蘭結合面的密封性能。
球閥所適用的場合
由于球閥通常用尼龍和聚四氟乙烯作為閥座密封圈材料,因此它的使用溫度受閥座密封圈材料的限制。
球閥的截止作用是靠金屬球體在介質的作用下,與塑料閥座之間相壓緊來完成的(浮動球球閥)。閥座密封圈在一定的接觸壓力作用下,局部地區發生彈塑變形。這一變形可以補償球體的制造精度和表面粗糙度,保證球閥的密封性能。 又由于球閥的閥座密封圈通常采用塑料制成,故在選擇球閥的結構和性能上,要考慮球閥的耐火和防火,特別是在石油、化工、冶金等部門,在易燃、易爆介質的設備和管路系統中使用球閥,更應注意耐火和防火。
通常,在雙位調節、密封性能嚴格、泥漿、磨損、縮口通道、啟閉動作迅速(1/4轉啟閉高壓截止(壓差大)、低噪聲、有氣穴和氣化現象、向大氣少量滲漏,操作力矩小、流體阻力小的管路系統中,推薦使用球閥。 球閥也適用于輕型結構、低壓截止(壓差小)、腐蝕性介質的管路系統中。
在低溫(深冷)裝置和管路系統中也可選用球閥。
在冶金行業的氧氣管路系統中,需使用經過嚴格脫脂處理的球閥。
在輸油管線和輸氣管線中的主管線需埋設在地下時,需使用全通徑焊接式球閥。
在要求具有調節性能時,需選用帶V形開口的專用結構的球閥。
在石油、石油化工、化工、電力、城市建設中,工作溫度在200℃以上的管路系統可選用金屬對金屬密封的球閥。
AT系列閥門氣動執行器簡介


AT系列閥門氣動執行器的性能
1、齒輪齒條雙活塞對稱結構設計,動作快速平穩,精度高,輸出功率大,通過簡單的改變活塞裝配位置可得到反方向旋轉。2、擠壓的鋁合金缸體,經精密加工的內孔和外部表面進行硬質陽極氧化處理(特殊情況下陽極氧化+特氟隆涂層),使用壽命更長,摩擦系數低。
3、一體式設計,所有的雙作用和單作用執行器型號,都具有相同的缸體和端蓋,很方便通過加裝彈簧或拆除彈簧來改變作用方式。
4、組合式預符荷彈簧組,不論在裝配過程或使用現場中,都能方便而的安裝或增減彈簧數量。
5、外部側面兩個單獨調節螺釘對于已安裝在閥門上的執行器更是精確方便,調節閥開和閥關位置,如需全行程調節時則另外在兩個端蓋處配置較長調節螺釘。
6、多功能位置指示器,現場可視化指示,符合VID/VIE3845、NAMUR標準槽,能安裝并輸出所有附件,如限位開關盒、電氣定位器、位置傳感器。
7、氣源接口符合NRMAR標準,可直接安裝NUMAR標準電磁閥。
8、齒條背面的復合材料軸瓦和活塞導向環以及輸出軸的軸承等為防止金屬對金屬的摩擦,并且增加潤滑,使其低摩擦、長壽命。
9、所有的緊固件均采用不銹鋼材料,長期抗腐蝕。
10、連接部分符合全新標準規范ISO5211,DIN3337(F03-F25)使產安裝具有互換性、通用性。
ATDA型雙作氣用式氣動執行器工作原理

當氣源壓力從氣口(2)進入氣缸兩活塞之間中腔時,使兩活塞分離向氣缸兩端方向移動,兩端氣腔的空氣通過氣口(4)排出,同時使兩活塞齒條同步帶動輸出軸(齒輪)逆時針方向旋轉。反之氣源壓力從氣口(4)進入氣缸兩端氣腔時,使兩活塞向氣缸中間方向移動,中間氣腔的空氣通過氣口(2)排出,同時使兩活塞齒條同步帶動輸出軸(齒輪)順時針方向旋轉。(如果把活塞相對反方向安裝,輸出軸變為反向旋轉,即為雙作用反轉ATSR型)
ATSR型單作氣用式氣動執行器工作原理

當氣源壓力從氣口(2)進入氣缸兩活塞之間中腔時,使兩活塞分離向氣缸兩端方向移動,迫使兩端的彈簧壓縮,兩端氣腔的空氣通過氣口(4)排出,同時使兩活塞齒條同步帶動輸出軸(齒輪)逆時針方向旋轉。在氣源壓力經過電磁閥換向后,氣缸的兩活塞在彈簧的彈力下向中間方向移動,中間氣腔的空氣從氣口(2)排出,同時使兩活塞齒條同步帶動輸出軸(齒輪)順時針方向旋轉。(如果把活塞相對反方向安裝,彈簧復位時輸出軸變為反向旋轉,即為單作用反轉SR型)
下一篇:D671X氣動塑料蝶-帶三聯件UPVC氣動塑料蝶閥
- 2025/01/27GHZXQYF-16RL-DN25不銹鋼在線取樣閥
- 2024/12/30手動法蘭取樣閥
- 2024/12/27自動復位在線取樣閥-帶鎖-堵頭
- 2024/12/26在線氣動定量取樣裝置-帶免開箱蓋蓋裝置
- 2024/12/26在線密閉式取樣閥-配PFA取樣瓶



電動閥門